International Federation of Surveyors

Commission 3 - WG 3.1
 

Athens-2000 Workshop

4-7 October 2000

"Spatial Information Management - Experiences and Visions for the 21rst Century"


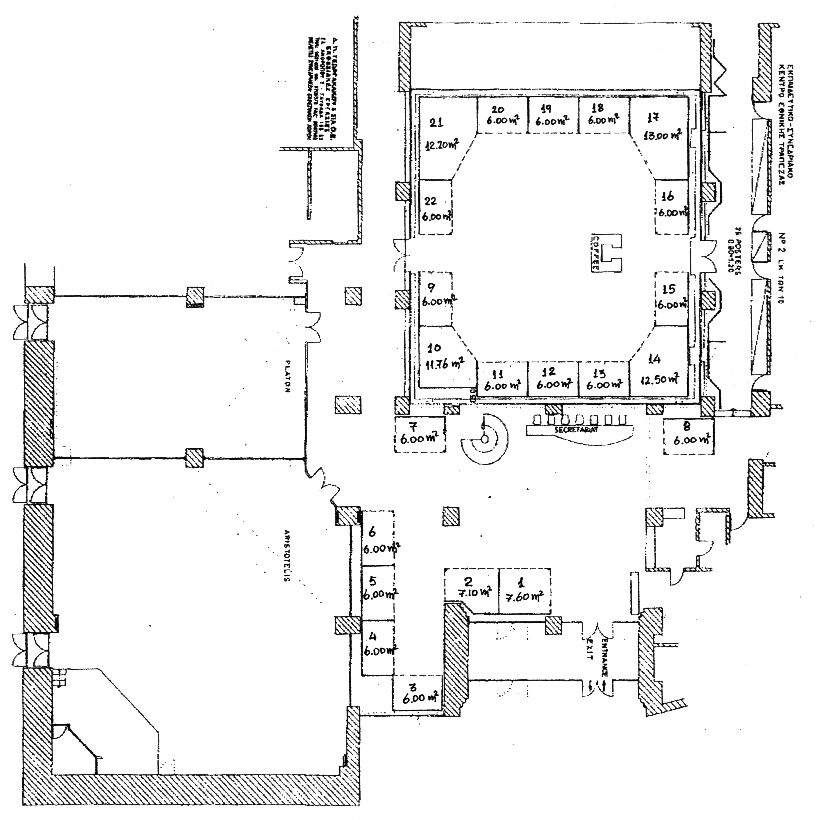
Fig.1: Layout of the Training & Conference Centre's Groundfloor

Technical Exhibition Information

The Workshop will take place in the "Aristotle" Conference Hall (415 sq.m.).

The Technical Exhibition will take place in both the Entrance Hall (stands 1-8) and the Restaurant (stands 9-22) from October 4th - 6th.

The area of the stands varies from 6 sq.m to 13 sq.m as shown in Fig.2, but adjoining stands can be connected. The price of each stand is estimated according to its size.
Price = 170 USD per sq.m.

The priority principle, according to the time of the Application Form submission, will be followed for the reservation of the exhibition stands.
You may need to Shift-click, in order to start downloading

 

Fig.2: Technical Exhibition stands layout

Best viewed in 1024 x 768 pixels Last updated: 3/5/2000